HEATSCOPE® infrared heaters are producing high energy efficient heat based on IR fast midwave up to efficient IR longwave technology.
Eye, skin and organism harming IR short waves are not produced by HEATSCOPE® carbon heating elements in any way. Designed for private and commercial use for wall and ceiling mounting in indoor and outdoor areas, HEATSCOPE® carbon radiant heaters produce heat within seconds wherever it is needed. The infrared radiant heater allows you to transport heat over a distance of up to 3 metres, ideally in a
specific direction.
Before installing the unit, please read this instruction manual carefully. Follow the information given to avoid endangering yourself, your family, your friends and your acquaintances. If you have any questions, contact the vendor or manufacturer.
Please keep this instruction manual in a safe place. Pass on the manual to any subsequent owner of the HEATSCOPE® unit and ensure that any supplements received are included along with it.
Prior to installation, ensure that the operating voltage matches the one specified on the rating plate of the HEATSCOPE® unit!
This instruction manual is intended solely for the standard products available. The technical data, installation requirements and dimensions of custom made, special versions may differ.
Manual Control

Bracket Installation

Version 1

Version 2
Installation





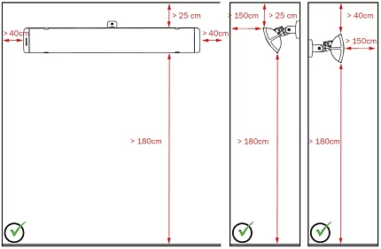
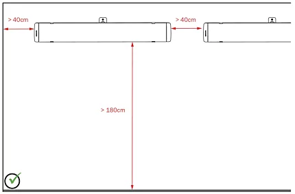
Minimum Distances











Unpacking the unit / packaging
Unpack the unit and the accessories carefully. When opening the packaging, do not use sharp objects that could damage the unit.
This product comes supplied in environmentally friendly packaging. All HEATSCOPE® packaging that comes into circulation either directly or via the trade is certified in accordance with §6 of the German Packaging Directive. As a result, all HEATSCOPE® packaging can be disposed of in an environmentally friendly manner in collection containers for packaging materials. All legal regulations must be observed here. Further information is available from the manufacturer.
Care information! Important! Clean the unit with a damp cloth before using it for the first time. Do not use cleaning products containing alkaline substances such as sodium hydroxide or soap, surfactants or solvents/alcohol.
Installation instructions
The different options for installing the HEATSCOPE® radiant heater are shown in the diagrams in the beginning of this manual. Ensure that the radiant heater is fixed securely to the installation surface. In terms of tensile and shear strength, the fixings must be able to withstand at least 3 times the weight of the radiant heater (including
accessories) that is to be installed. When installing the unit, use the correct screws (supplied) for the surface.
Please bear in mind that you only need one fixing bracket to fix your unit safely. Please refer to the minimum installation dimensions for the unit (cf. „spacings“).
Acc. to EU 2015/1188 ecodesign directive for energy-related products the application of a thermostat with a room sensor, weekday control system and window opening detection is mandatory, when installation a heating unit indoors. This is possible with this HEATSCOPE® type. In combination with the optional available thermostat DEVIreg™ Smart this heater of this series fulfills the conformity of the ecodesign
directive.
HEATSCOPE® heaters are basically made for outdoor use – and in most cases they are used outdoors finally. Due to this they are factory-set delivered without any thermostat control system acc. to EU 2015/1188 ecodesign directive. This is consequent, reasonable and will economise valuable resources. Many times a separate temperature system / thermostat acc. to ecodesign directive is already installed and the heaters should be fit in this system. In this case the customer or the assigned installer is responsible to accomplish the EU standards of the ecodesign directive.
Operation, Installation Instructions and Min. Distances
Once you have installed the unit, you can use it for the first time.
The HEATSCOPE® features two omnipolar „ON/OFF“ switches. You can control the radiant heater manually using these selector switches on the unit itself.
The unit must be connected to a residual current circuit breaker and a fuse! Install the unit in any indoor or outdoor areas. The HEATSCOPE® is protected against splashing water and dust. It has an IP65 protection class for the PURE and IP25 for the NEXT and PURE+.
CAUTION: The mounting of the heater on the wall and on the cieling as well as in glass houses and conservatories has professionally to be accomplished solely according to the mounting regulations. Specified safety distances given are min. values and may deviate from the local building and fire safety regulations.
The safety distances as well as the local building and fire safety regulations must be complied with at all times, leave improper stated installation settings undone at any time. Deviant installation settings require the technical approval of the manufacturer. In the case of a deviant installation setting without approval of the manufacturer danger for people and environment may occur. Warranty and guarantee expires for
all heaters, which are not installed according to this operation and installation manual!
Other protective spacings may need to be taken in accordance with local fire safety regulations, e.g. for installation on combustible surfaces.
All cables must be positioned so that they cannot come into contact with the surface of the radiant heater at any time. The radiant heater must not be installed directly below a power socket. The sides of the HEATSCOPE® must be at least 20 cm from any power sockets.
Removal from service / disposal
When the unit reaches the end of its life, it must be removed from service by a specialist in accordance with the relevant regulations and steps must be taken to ensure that it cannot be put into use again.
The unit must be disposed of professionally and in an environmentally friendly manner. The relevant legal regulations must be observed.